Cityscape, Calgary

9065 Cityscape Drive NE, Calgary, Alberta, T3J 4G1

  • A2294775
  • MLS Number
  • 3
  • Bedrooms
  • 3
  • Bathrooms
  • 1458.00
  • sqft
  • 2026
  • Year Built
Property Description
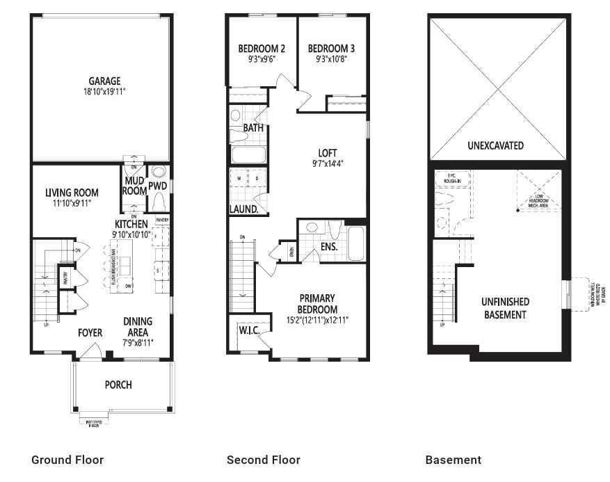
Click brochure link for more details** The Ripley End welcomes you with a generous front porch before leading into an open main floor designed for connection. The kitchen, complete with a central quartz island and breakfast bar, flows seamlessly into the dining and living areas, creating a natural hub your everyday living. Upstairs, a bright, large loft adds flexible space for relaxation or productivity. Bedrooms two and three are close to the full bathroom and conveniently located laundry room. Relax in the sizable primary bedroom that offers a spacious walk-in closet and private ensuite. Mattamy includes 8 solar panels on all homes as a standard inclusion! *Renderings are representative – exterior colours may vary.
Video
Virtual Tour
Property Details
  • Property Type Row/Townhouse, Residential
  • MLS Number A2294775
  • Property Size 1458.00 sqft
  • Bedrooms 3
  • Bathrooms 3
  • Garage 1
  • Year Built 2026
  • Property Status Active
  • Parking 2
  • Brokerage name Honestdoor Inc.
Features & Amenities

Location

Lucas Ramage
Call 403-270-7007
Similar Listings

Are you interested in 9065 Cityscape Drive NE, Calgary, Alberta, T3J 4G1?

Contact us today and one of our team members will get in touch.

Compare listings

Compare
Lucas Ramage
  • Lucas Ramage
×
If you are buying, selling or investing in the Calgary Real Estate market, we can guide you.

With decades of experience, and a successful approach to marketing and client care. We are powered by a technology based brokerage with a strong collaborative agent culture.