Edgewater, Airdrie

43 Elizabeth Way SE, Airdrie, Alberta, T4B2H5

  • A2302234
  • MLS Number
  • 4
  • Bedrooms
  • 3
  • Bathrooms
  • 1193.00
  • sqft
  • 1994
  • Year Built
Property Description
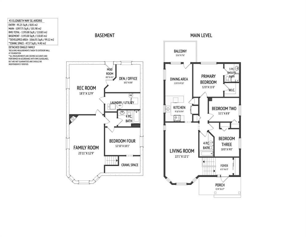
FULLY DEVELOPED WALKOUT BI-LEVEL BACKING ONTO GREEN SPACE! Welcome to 43 Elizabeth Way SE in Airdrie — a well-maintained and thoughtfully updated home offering over 2,200 sq ft of developed living space, perfectly positioned with direct access to a park and green space right out your back gate. The main level is bright and inviting, featuring vaulted ceilings and beautiful hardwood flooring in the spacious living room, enhanced by a stunning bay window that floods the space with natural light. The renovated kitchen offers rich cabinetry, granite countertops, and a functional layout that flows seamlessly into the sunny dining area — ideal for everyday living and entertaining. Upstairs you’ll find three well-sized bedrooms, including a comfortable primary retreat complete with a 3-piece ensuite and walk-in closet. The main bathroom has been tastefully updated, adding to the home’s overall appeal. The fully developed walkout basement provides exceptional additional living space with a large family room featuring a cozy gas fireplace and new LVP flooring. This level also includes a fourth bedroom, full bathroom, dedicated office, and a spacious rec room, making it ideal for growing families or those needing flexible space. Situated on a large lot, this property offers both privacy and convenience, with schools, pathways, and Nose Creek Park just minutes away. Added value comes with solar panels, helping to improve energy efficiency and reduce utility costs. Exceptionally well priced, this is a fantastic opportunity to own a move-in ready home in a family-friendly location with unbeatable access to outdoor space.
Video
Virtual Tour
Property Details
  • Property Type Detached, Residential
  • MLS Number A2302234
  • Property Size 1193.00 sqft
  • Bedrooms 4
  • Bathrooms 3
  • Year Built 1994
  • Property Status Active
  • Parking 2
  • Brokerage name Yates Real Estate Ltd
Features & Amenities

Location

Lucas Ramage
Call 403-270-7007
Similar Listings

Are you interested in 43 Elizabeth Way SE, Airdrie, Alberta, T4B2H5?

Contact us today and one of our team members will get in touch.

Compare listings

Compare
Lucas Ramage
  • Lucas Ramage
×
If you are buying, selling or investing in the Calgary Real Estate market, we can guide you.

With decades of experience, and a successful approach to marketing and client care. We are powered by a technology based brokerage with a strong collaborative agent culture.