Legacy, Calgary

271 Legacy Mount SE, Calgary, Alberta, T2X 2G7

  • A2298020
  • MLS Number
  • 4
  • Bedrooms
  • 4
  • Bathrooms
  • 2971.63
  • sqft
  • 2026
  • Year Built
Property Description
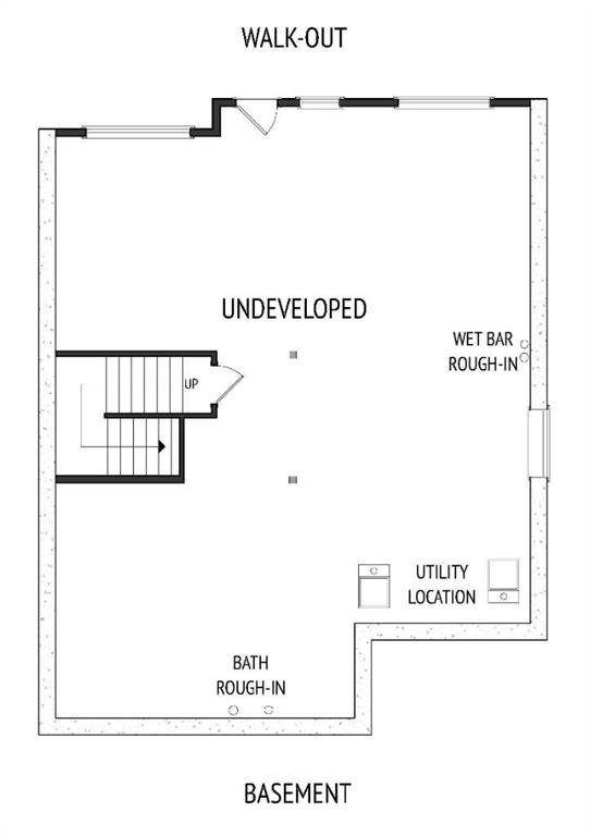
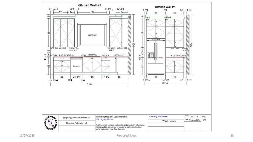
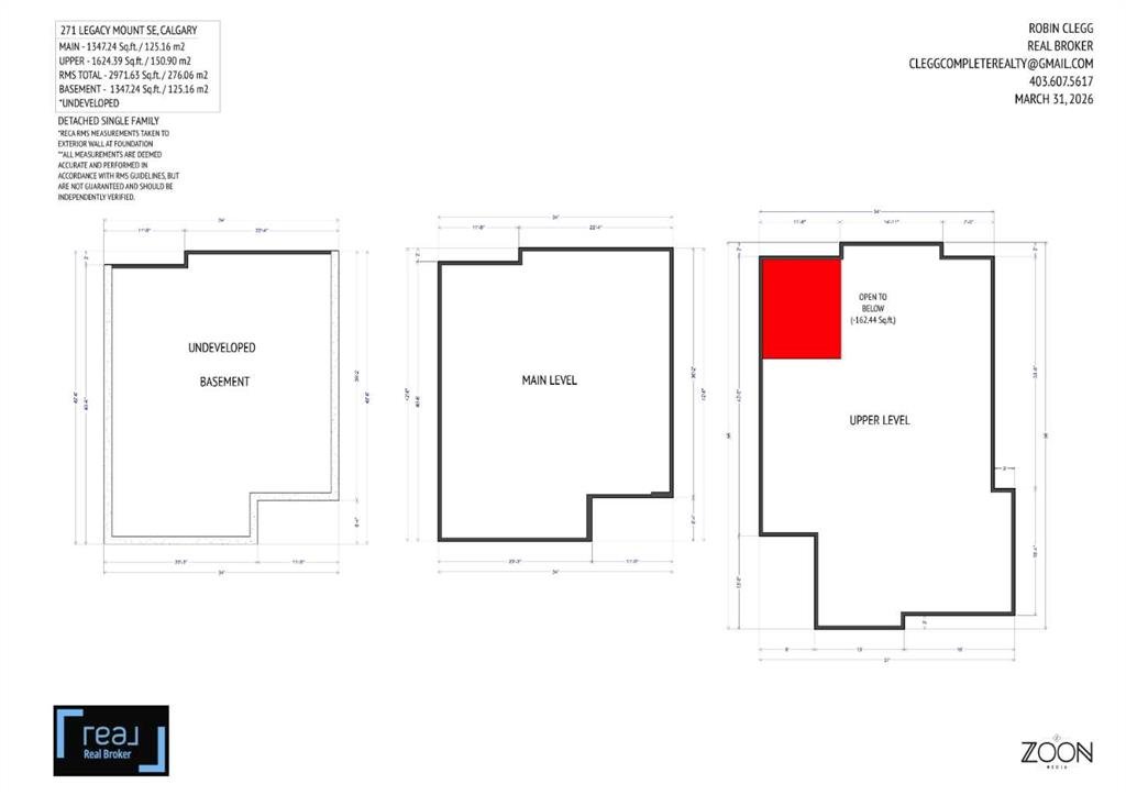
Currently under construction in Legacy Estates with an anticipated completion in Summer 2026, this custom two-storey walkout offers a refined balance of scale, design, and location. Backing directly onto the pathway system and green space, the setting provides immediate access to parks, playgrounds, and nearby amenities. The home offers just under 3,000 sq.ft. of developed living space above grade, an attached triple garage, and an additional 1,349 sq.ft. walkout unfinished basement, allowing for future customization. The main level features 10’ ceilings, engineered hardwood flooring throughout, and a dramatic open-to-above living room with nearly 20’ ceiling height, where expansive windows and a statement fireplace create a strong architectural focal point. Several thoughtfully designed feature walls are incorporated throughout the home, adding depth and visual interest. A rear deck extends off the kitchen and living area, positioned to overlook the green space beyond. The kitchen is designed for entertaining, with extensive custom cabinetry, quartz surfaces, and a butler’s pantry/walk-in pantry combination that enhances both storage and functionality. The main level is completed by a separate dining area, private office, powder room, two full closets, and a well-designed mudroom. Upstairs, 9’ ceilings carry through four bedrooms. The primary suite includes a well-appointed ensuite and walk-in closet, while a secondary bedroom features its own private ensuite. Two additional bedrooms are generously sized, each with walk-in closets, and are supported by a full bathroom. A spacious upper-level laundry room offers additional cabinetry and counter space. A well-considered opportunity to secure a new-build estate home in one of Legacy’s most desirable enclaves, offering a walkout lot, elevated design elements, and a customizable lower level.
Video
Virtual Tour
Property Details
  • Property Type Detached, Residential
  • MLS Number A2298020
  • Property Size 2971.63 sqft
  • Bedrooms 4
  • Bathrooms 4
  • Garage 1
  • Year Built 2026
  • Property Status Active
  • Parking 3
  • Brokerage name Real Broker
Features & Amenities

Location

Lucas Ramage
Call 403-270-7007
Similar Listings

Are you interested in 271 Legacy Mount SE, Calgary, Alberta, T2X 2G7?

Contact us today and one of our team members will get in touch.

Compare listings

Compare
Lucas Ramage
  • Lucas Ramage
×
If you are buying, selling or investing in the Calgary Real Estate market, we can guide you.

With decades of experience, and a successful approach to marketing and client care. We are powered by a technology based brokerage with a strong collaborative agent culture.