Greenwood/Greenbriar, Calgary

22 Greenwich Row NW, Calgary, Alberta, T3B 6P4

  • A2282441
  • MLS Number
  • 5
  • Bedrooms
  • 4
  • Bathrooms
  • 2295.00
  • sqft
  • 2026
  • Year Built
Property Description
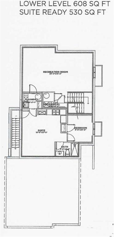
MULTI-GENERATIONAL LIVING/INCOME POTENTIAL! Experience the perfect blend of style and function in The Manhattan, a 2,300 ft2 two-storey home. The main floor features 1,137 sq. ft., including a dedicated den or bedroom with a full ensuite, ideal for working from home or as a quiet retreat. The upper floor provides 1,162 sq. ft. of living space, including 3 spacious bedrooms, 2 bathrooms, and a convenient laundry room. With an open-to-below design, enjoy the grandeur of the main living area from the upper floor. The fully developed basement of this home includes a finished recreation room for the main house and a complete 1-bedroom Legal suite with a separate entrance. (Legal Suite can be redesigned to make the home ‘single-family’ living.) The triple front drive garage ensures plenty of space for vehicles and storage. As a Custom Concepts’ Personalized Home this home offers the perfect balance of convenience and customization, allowing you to jump-start the build process by approximately six months. The initial design, permitting, foundation, and framing are already completed, so you can begin personalizing at the rough-in stage. If you’re looking for a quicker build process and a faster move-in date with the added benefit of tailoring your home to your design preferences, our Personalized Homes might be the perfect choice for you. Upper Greenwich is a distinctive community nestled on the west edge of Calgary – an easy commute to downtown with quick access to the Rocky Mountains. Upper Greenwich is a lovely blend of sophisticated urban living in natural surroundings. Walking paths, sport courts, playgrounds and abundant greenspaces can be enjoyed right outside your front door. The HOA ensures upkeep of the amenities of the community and helps bring people together with seasonal celebrations and neighborhood events. Upper Greenwich is a community that is connected, active and thriving!
Video
Virtual Tour
Property Details
  • Property Type Detached, Residential
  • MLS Number A2282441
  • Property Size 2295.00 sqft
  • Bedrooms 5
  • Bathrooms 4
  • Garage 1
  • Year Built 2026
  • Property Status Active
  • Parking 6
  • Brokerage name RE/MAX House of Real Estate
Features & Amenities

Location

Lucas Ramage
Call 403-270-7007
Similar Listings

Are you interested in 22 Greenwich Row NW, Calgary, Alberta, T3B 6P4?

Contact us today and one of our team members will get in touch.

Compare listings

Compare
Lucas Ramage
  • Lucas Ramage
×
If you are buying, selling or investing in the Calgary Real Estate market, we can guide you.

With decades of experience, and a successful approach to marketing and client care. We are powered by a technology based brokerage with a strong collaborative agent culture.