Woodhaven, Okotoks

162 Woodbend Way, Okotoks, Alberta, T1S 1M1

  • A2287796
  • MLS Number
  • 4
  • Bedrooms
  • 4
  • Bathrooms
  • 2982.27
  • sqft
  • 1986
  • Year Built
Property Description
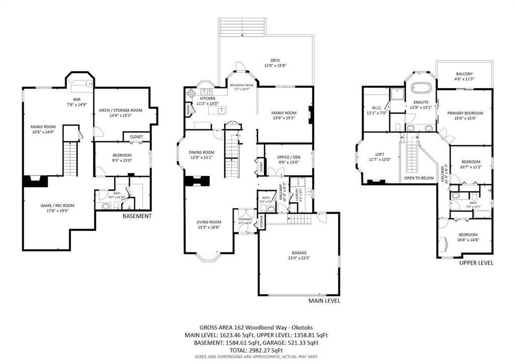
Set on a premium ridge lot backing onto the Sheep River Valley, pathway system, and nature reserve, this distinctive home offers a rare combination of setting, space, and character. Surrounded by mature landscaping and uninterrupted natural views, the location provides privacy, direct access to outdoor recreation, and a strong connection to the surrounding environment. This well-maintained, character-rich home blends timeless design with thoughtful updates. Warm cedar ceilings, vaulted spaces, and multiple fireplaces create a sense of comfort and individuality that’s hard to replicate in newer construction. Unique architectural details and natural materials throughout give the home a welcoming, lived-in feel while still offering generous room sizes and flexible living areas. Recent updates include a new roof, exterior paint, driveway, garage door, furnaces, and flooring throughout. A custom solar panel system has been installed and is producing more electricity annually than the home uses (seller-provided data), offering long-term energy efficiency and reduced operating costs. Featuring over 4,500 sq ft of developed living space, the layout supports both everyday living and larger gatherings. The upper-level features three spacious bedrooms and a versatile loft, while the primary bedroom includes a large ensuite, walk-in closet, and an east-facing balcony overlooking the river valley—an ideal spot to enjoy morning light and changing seasons. The main floor offers multiple living and dining areas, laundry room, bar area, and a flexible den or office space. The fully developed basement extends the home’s functionality with an additional bedroom, recreation and games rooms, wet bar, ample storage, and a four-piece bathroom with sauna. Outdoors, the low-maintenance backyard by Kayben extends your outdoor living with pergola areas, and inviting spaces to relax or entertain while taking in the natural surroundings. This is a home with history, warmth, and a setting that’s increasingly hard to find—offering space to grow, gather, and enjoy a truly special location. Don’t miss your chance to own this incredible home!
Video
Virtual Tour
Property Details
  • Property Type Detached, Residential
  • MLS Number A2287796
  • Property Size 2982.27 sqft
  • Bedrooms 4
  • Bathrooms 4
  • Garage 1
  • Year Built 1986
  • Property Status Active
  • Parking 4
  • Brokerage name Century 21 Foothills Real Estate
Features & Amenities

Location

Lucas Ramage
Call 403-270-7007
Similar Listings

Are you interested in 162 Woodbend Way, Okotoks, Alberta, T1S 1M1?

Contact us today and one of our team members will get in touch.

Compare listings

Compare
Lucas Ramage
  • Lucas Ramage
×
If you are buying, selling or investing in the Calgary Real Estate market, we can guide you.

With decades of experience, and a successful approach to marketing and client care. We are powered by a technology based brokerage with a strong collaborative agent culture.