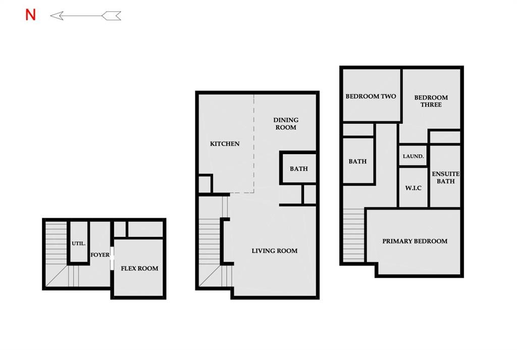
Welcome to this BILD Calgary award-winning, END UNIT 3-storey Village Townhome in the highly sought-after Vesta Elevate Collection, nestled in Cooper’s Crossing—Airdrie’s multi-time “Best Community” award winner. Showcasing state-of-the-art modern living with a touch of classic architectural charm, this practically new home offers the perfect blend of style, functionality, and location. Thoughtfully designed, the home features 3 bedrooms, 2.5 bathrooms, and a versatile ground-floor flex room—ideal for a home office, gym, or additional living space. The bright and spacious open-concept main floor boasts 9-foot ceilings and is perfectly suited for both everyday living and entertaining. At the heart of the home is an elegant gourmet kitchen, featuring full-height cabinetry with soft-close drawers and doors, upgraded stainless steel appliances (with extended warranty), sparkling quartz countertops, a pantry and a generous center island. The kitchen flows seamlessly into the dining and living areas, with access to a massive covered balcony with natural gas hookup, while a convenient powder room completes the main level.
Upstairs, the deluxe primary suite offers a peaceful retreat with an ensuite bathroom and a sizeable walk-in closet, complemented by two additional bedrooms, a 4-piece main bathroom, and a practical upper-floor laundry room. Large windows throughout the whole home maximize natural light and enhance its bright and airy feel. Outdoor living is equally impressive, with a rare feature of two balconies, a spacious one off the dining room on the main floor – perfect for relaxing or entertaining and another private and covered, west-facing balcony off the master bedroom. The home also includes central A/C, a double attached and insulated garage with an additional storage room, plus two additional full-size driveway parking stalls and a concrete front patio, all rare and highly desirable features in townhomes.
Enjoy the ease of low-maintenance living with professionally designed and maintained landscaping, allowing more time to take advantage of the unbeatable location. Situated directly across from Cooper’s Town Promenade, you’ll have walkable access to shopping, dining, and everyday amenities, along with nearby parks, pathways, and schools. This exceptional property offers upscale finishes, a flexible layout, and unmatched convenience—ideal for professionals, families, or investors seeking elevated living in one of Airdrie’s premier communities.
If you are buying, selling or investing in the Calgary Real Estate market, we can guide you.
With decades of experience, and a successful approach to marketing and client care. We are powered by a technology based brokerage with a strong collaborative agent culture.